印刷する
ページ番号 : 39602
更新日:2026年4月1日
ここから本文です。
景観法および都市景観条例に基づく届出に関する手引きです。ご活用ください。
景観計画区域とは、景観計画に定めた内容が適用される区域を指します。
明石市では、市内全域を景観計画区域に定めています。
景観計画区域で一定規模以上の建築等行為を行う際、事業者は、行為着手の30日前までに市への届出が必要です。
届出が必要となる対象行為は次のとおりです。
※対象規模は地区ごとに異なります。
次の図書を提出してください。(正副各1部)
次の図書を提出してください。(正副各1部)
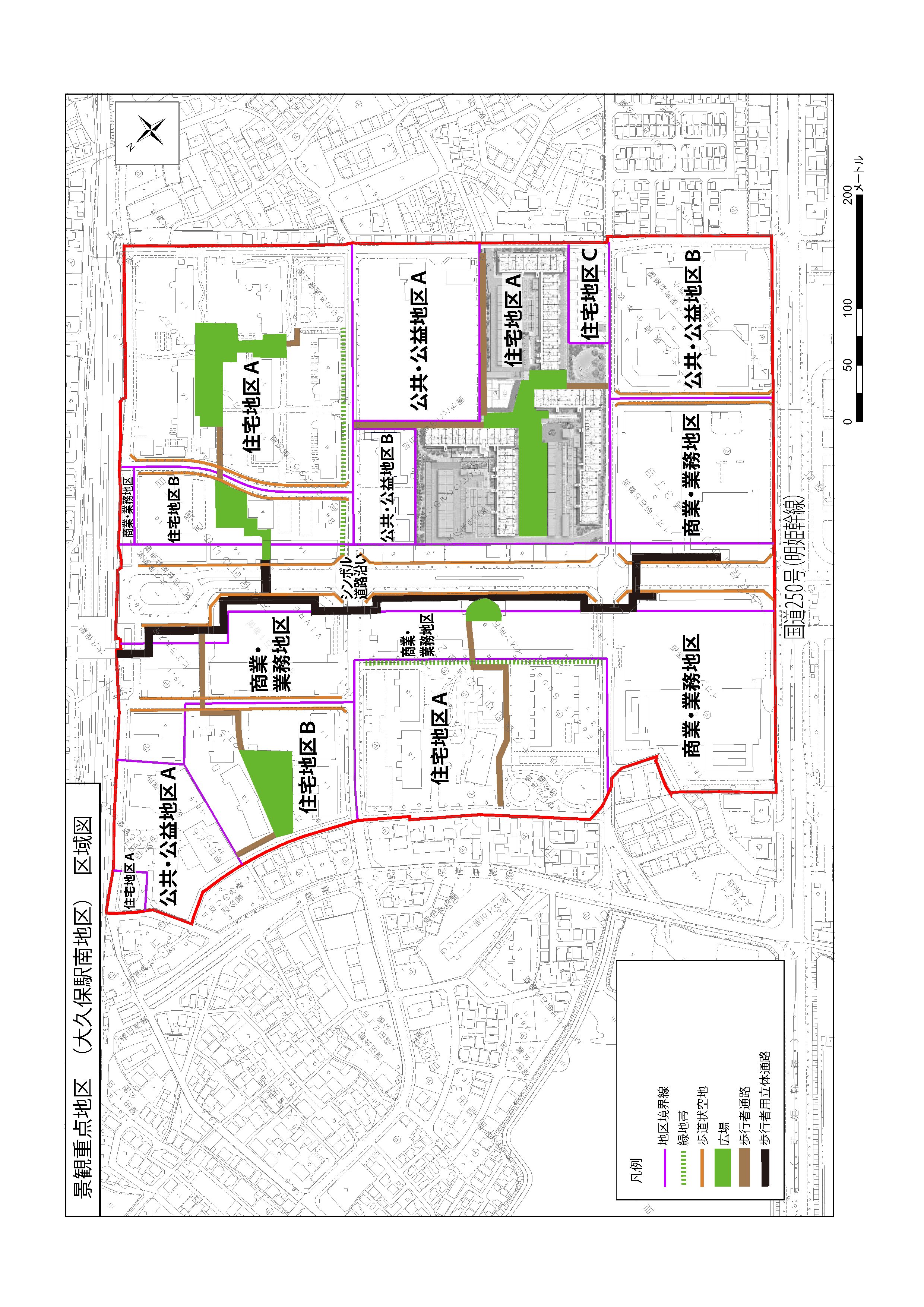
景観計画区域のうち、重点的に都市景観の形成を図るための区域を景観重点地区として景観計画に定めることとします。明石市では、次の地域を景観重点地区として定めています。

一定規模以上の建築物等については法に基づく行為の届出により、市が助言・指導を行うこととしていますが、届出段階においては、その実施計画がほぼ固まっており、位置・規模等の設計変更をする場合は相当な手戻りとなるため、事業者の大きな負担となります。
そのため、特に景観への影響が大きい大規模建築物等については、協議結果の反映が可能な計画段階において事業者と市が話し合うことによって、より良い景観形成を図れるよう、届出の前に協議を行うこととしています。
| 指定容積率400%以上の地域 | その他の地域 | |
| 建築物 |
高さが60mを超えるもの または延べ面積が30,000㎡を超えるもの |
高さが31mを超えるもの または延べ面積が15,000㎡を超えるもの |
|
工作物 |
高さが60mを超えるもの (建築物等と一体となって設置される場合は工作物等の高さが40mを超え、かつ、当該建築物等の高さとの合計が60mを超えるもの) |
高さが31mを超えるもの (建築物等と一体となって設置される場合は工作物等の高さが20mを超え、かつ、当該建築物等の高さとの合計が31mを超えるもの) |
次の図書を提出してください(正副各1部+協議用10部)
協議の一環として、専門家により構成された「都市景観アドバイス会議」を実施しています。(工作物を除く)
対象のボタンを選択すると
表示内容が切り替わります